Utilizamos cookies e outras tecnologias semelhantes para melhorar sua experiência em nosso site. Conheça nossa Política de Privacidade
Aceitar

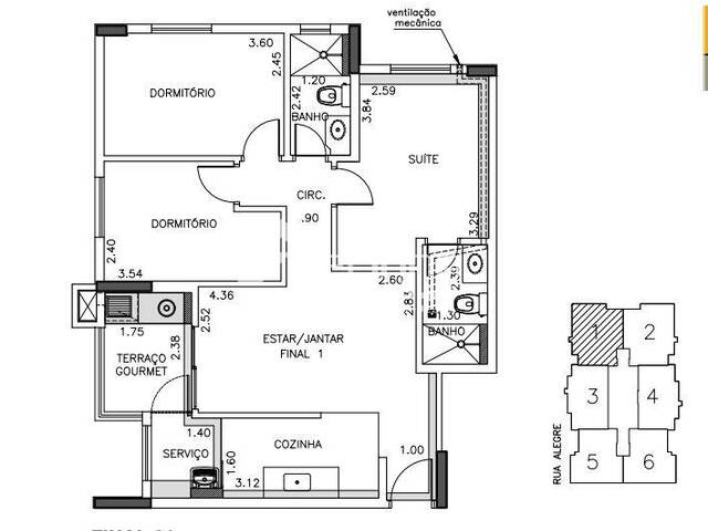
Apartamento Condomínio Clube 77 m² - 3 quartos - 2 vagas - B. Campestre

Apartamento Cód. AC6176
Campestre, Santo André - SP

Apartamento em Condomínio Clube, pronto para morar em andar alto e vista interna para toda a área de lazer. Esse imóvel tem 77 m², 3 dormitórios sendo 1 suíte, varanda gourmet com churrasqueira envidraçada integrada a sala, cozinha americana, 2 banheiros, área de serviço com porta em vidro, 2 vagas de garagem. Móveis planejados em todos os ambientes, todo reformado nas áreas frias (cozinha, banheiros e varanda) e Piso vinílico de ótima qualidade nos quartos e sala. Possui sol manha nos quartos e a tarde na lateral da sacada. Condomínio com lazer completo para toda a família: São 4 Piscinas adulto e infantil, Academia equipada, 3 Salões de festas e 3 Churrasqueiras, Quadra poliesportiva e Quadra Society, Playground e brinquedoteca equipada com brinquedão. Salão de jogos, Áreas verdes e convivência, Sala de cinema, Sala de games, Sauna, Sala de Pilates, Bicicletário, Coworking, Portaria 24h e segurança completa. Além de lazer conta com comodidades para facilitar o dia a dia: Padaria, Minimercado Hirota, Espaço para beleza com atendimentos diversos Sala de massagem / depilação. Bem localizado no B. Campestre a 5 minutos da Estação Utinga, Av. D. Pedro II, Shopping Grand Plaza, fácil acesso a comércios, escolas e principais vias como Av. D. Pedro II , Av. Goiás (divisa com SCS), Av. dos Estados, Rua das Figueiras, Estuda-se permuta com Apartamento sem condomínio (tipo cobertura) como parte de pagamento. IPTU  R$ 600,00 / ano. Imóvel Quitado. Documentação em ordem. Preços e condições sujeitos a alterações. Agende uma visita conosco!

77 m²
3 quartos
2 banh.
2 vagas

Apartamento mobiliado 2 dormitórios

Apartamento Cód. GA10.657
Vila Moinho Velho, São Paulo - SP

Lindo apartamento com 49,93 m²- Apartamento com 2 Dorms, 1 banheiro, sala e cozinha integrados, todo mobiliado, ficando também fogão de Indução e a Coifa de Ilha,(Tudo material de primeira qualidade). Documentação ok, quitado. Valor do Condomínio incluso água. Sem vaga de garagem Prédio : Com salão de festa com churrasqueira (Rooftop 8º andar) Área aberta externa com vista panorâmica para o Ipiranga. Preços e Condições sujeitos a alterações

49,93 m²
2 quartos
1 banh.

Apto Térreo com 2 quintais- B. Olímpico

Apartamento Cód. GA10.655
Santa Maria, São Caetano do Sul - SP

Apartamento térreo com 2 quintais, são 3 dormitórios, sendo 01 suíte, sala com 2 ambientes, cozinha planejada, área de serviço, 1 vaga de garagem. Prédio baixo com elevador. Garantia Seguro Fiança/ título de capitalização Preços e Condições sujeitos a alterações

121 m²
3 quartos
2 banh.
1 vaga

Apartamento à venda, 63 m² por R$ 390.000,00 - São João Clímaco - São Paulo

Apartamento Cód. NS3292
Jardim Patente, São Paulo - SP

Apartamento à venda, 63 m² por R$ 390.000,00 - São João Clímaco - São Paulo 3 dormitórios sendo 1 suite, sala, cozinha, banheiro, lavanderia e 1 vaga de garagem. Condomínio possui, churrasqueira, campo de futebol, playground, academia, salão de jogos, espaço mulher e brinquedoteca. Ótima oportunidade em comprar seu imóvel:- Imóvel com uma ótima localização, próximo a comércios, farmácias, lavanderias, padarias, mercados e linha de ônibus. 05 minutos de carro ao Shopping Parque São Caetano do Sul. 10 minutos de carro do Terminal e metro Sacomã. Faça já a sua visita e realize o sonho de adquirir um imóvel próprio !! Preços e condições sujeito a alterações.

63 m²
3 quartos
1 banh.
1 vaga

Apartamento Radialista - segundo andar

Apartamento Cód. GA10.654
São José, São Caetano do Sul - SP

Venda apartamento Condomínio Radialista - Paraguatã- com 2 quartos, sala cozinha, 01 banheiro. Condomínio com portaria 24 horas, clube do condomínio com lazer, gás e água individualizados. Localização: Próximo ao Colégio Jorge Street, Fórum, lojas, padaria, comércio, transportes, acesso fácil a av dos Estados e também a Via Anchieta. Preços e condições sujeitos a alterações

52 m²
2 quartos
1 banh.
1 vaga

Apto Térreo com 2 quintais- B. Olímpico

Apartamento Cód. GA10.653
Santa Maria, São Caetano do Sul - SP

Apartamento térreo com 2 quintais, são 3 dormitórios, sendo 01 suíte, sala com 2 ambientes, cozinha planejada, área de serviço, 1 vaga de garagem. Prédio baixo com elevador. Preços e Condições sujeitos a alterações

121 m²
3 quartos
2 banh.
1 vaga

Apartamento 72 m² - 3 quartos - 1 suíte - 1 vaga - Pq. Jaçatuba

Apartamento Cód. AC6175
Parque Jaçatuba, Santo André - SP

Apartamento 72 m² de área útil - Torre única com 3 dormitórios sendo 1 suíte e 1 dormitório transformado em closet. Sala com rack para TV / aparelhos eletrônicos e persiana, inclusive nos quartos. Cozinha completa, com armários, fogão e coifa; 2 banheiros completos. Lavanderia com armário e aquecedor de água. Sala 2 ambientes com varanda gourmet, churrasqueira elétrica e envidraçada. Possui 1 vaga de garagem. Valor do condomínio = R$ 500,00 Valor do IPTU anual = R$ 137,00 Condomínio com Área de lazer: Piscina, Quadra poliesportiva, Pista de skate, Salão de festa, Espaço Zen e Beauty, Espaço Gourmet, Espaço de encontro, Academia, Sauna seca e Brinquedoteca. Bem localizado próximo a comércios locais, parques, farmácias, mercados e fácil acesso as principais vias ao ABCD e SP.  Preços e condições sujeitos a alterações.

72 m²
3 quartos
2 banh.
1 vaga

Apartamento 78 m² - 3 quartos - 1suíte - 2 vagas - Vl. Helena

Apartamento sem condomínio Cód. AC6174
Vila Helena, Santo André - SP

Apartamento aconchegante com 78 m², 3 dormitórios sendo 1 suíte com sacada, 2 banheiros, cozinha americana com armários e lavanderia, varanda interna com cobertura retrátil. Possui 2 vagas de garagem cobertas. Imóvel recém reformado, moderno, com móveis planejados, ótimos acabamentos, porcelanato Portobello em cimento queimado, metais Lorenzetti, varanda com tela de proteção, pé direito alto. Ótima localização, próximo ao centro, feira livre, parques, escolas, comércio, posto de saúde, hospital, transporte público e fácil acesso as principais vias ao ABCD e SP. Condomínio baixo: R$ 110,00 IPTU R$ 306,00 anual. Água e gás individualizado. Preço e condições sujeitos a alterações.

78 m²
3 quartos
2 banh.
2 vagas

Casa/Terreno 5 x 50 metros - Bairro Santa Maria - São Caetano do Sul

Casa Cód. NS3284
Santa Maria, São Caetano do Sul - SP

Venda de casa antiga/ terreno em um dos bairros mais procurados de São Caetano - Bairro Santa Maria Imóvel com 5 x 50 metros em terreno plano. Localizado próximo a Av. Pres. Kennedy, Cidade das Crianças, Teatro Paulo Machado. Preços e condições sujeito a alterações.

5x50 m²

Terreno Grande 10x 60 metros com casas antigas na Nova Gerty - SCS

Casa Cód. IM1421
Nova Gerty, São Caetano do Sul - SP

Buscando terreno grande em São Caetano do Sul? Essa é um ótima Oportunidade Terreno à venda com 600m², excelente oportunidade para investidores, construtores ou para quem busca um espaço amplo em localização estratégica. O imóvel conta com casas antigas construídas no terreno, necessitando reforma ou demolição, ideal para novos projetos residenciais ou comerciais. A área possui ótima metragem, topografia favorável e grande potencial de valorização. Localizado em região com fácil acesso a comércios, escolas, transporte público e principais vias da cidade. Perfeito para construção de sobrados, condomínio residencial, galpão ou modernização das edificações existentes. Documentação em ordem. Entre em contato para mais informações e agendamento de visita.

Apartamento 3 dormitórios - Bairro Boa Vista - São Caetano do Sul

Apartamento Cód. JE13279
Boa Vista, São Caetano do Sul - SP

Excelente apartamento no Bairro Boa Vista, em São Caetano do Sul. Imóvel com 90 m² de área útil, ideal para quem busca conforto, praticidade e excelente localização em uma das regiões mais valorizadas e tranquilas da cidade. Possui 3 quartos amplos e bem distribuídos, além de armários planejados em 2 dos quartos, proporcionando mais organização e funcionalidade para o dia a dia. Conta com sala aconchegante planejada, integrada à sacada, oferecendo ótima iluminação natural e ventilação, cozinha planejada com excelente aproveitamento de espaço, lavanderia com armários, 2 banheiros completos e 1 vaga de garagem coberta. O apartamento possui ambientes bem conservados e acabamento funcional, perfeito para famílias que desejam morar com conforto e praticidade. Localizado em região segura e com fácil acesso à Avenida Presidente Kennedy, Avenida Goiás e Via Anchieta, está próximo ao ParkShopping São Caetano, supermercados, escolas, hospitais, farmácias, academias e diversos comércios e serviços da região. O imóvel fica a aproximadamente 5 minutos de carro do centro de São Caetano do Sul e cerca de 20 minutos a pé. A estação de metrô mais próxima é a Estação Tamanduateí, localizada a aproximadamente 15 minutos de carro e cerca de 1 hora de caminhada. O condomínio oferece área de lazer para toda a família: • salão de festas. Valores e condições sujeitas a alteração

90 m²
3 quartos
2 banh.
1 vaga

2 Quartos | Varanda Gourmet + Condomínio

Apartamento Cód. GA10.652
Fundação, São Caetano do Sul - SP

Apartamento: com 70m², 2 quartos , sendo 01 s (1 suíte) 2 banheiros Planta em conceito aberto, integrando sala, cozinha, jantar e sacada Piso vinílico em todo o apartamento, sacada gourmet com churrasqueira a carvão e exaustão independente, móveis planejados. Apartamento 100% automatizado via Alexa, Fechadura eletrônica com biometria ,Aquecimento a gás, redes de proteção nas janelas, imóvel pronto para morar. Condomínio clube com infra-estrutura completa e exclusiva , com lazer. Piscina aquecida no terraço, Solarium Sauna ,Academia completa com equipamentos de alta performance, Salão de festas com churrasqueira, Espaço para eventos com estrutura para buffet, 2 salões de jogos (adulto e infantil) ,Brinquedoteca ,Playground , Espaço beleza, Mini mercado no condomínio, Portaria 24 horas com controle de acesso, Vaga de garagem. Localização: Ao lado da estação da CPTM, com acesso rápido à capital e toda a região do ABC, além de ampla oferta de comércios e serviços, valor de condomínio incluso a água. Preços e condições sujeitos a alterações.

70 m²
2 quartos
2 banh.
1 vaga

Sobrado 3 quartos, 1 suíte - 2 vagas - B. Campestre

Sobrado Cód. AC6173
Campestre, Santo André - SP

Excelente cobrado 98 m² com 3 dormitórios sendo 1 suíte, banheiro social e 1 lavabo, 2 vagas de garagem sendo uma descoberta com portão automático, lavanderia com quintal e churrasqueira. Ótima cozinha com móveis planejados, sala 2 ambientes estar e jantar com sanca. Bem localizado, próximo a escolas, mercados, padarias, feiras, empório, hortifrúti, Rua das Figueiras, Av. Tiete, Av. D. Pedro II, R. General Canavarro entre outros diversos comércios locais. Fácil acesso as principiais vias para o ABC e SP. Preços e condições sujeitos a alterações.

98 m²
3 quartos
3 banh.
2 vagas

Casa térrea à venda 2 dormitórios com edícula - Bairro Olímpico

Casa Cód. NAL3276
Olímpico, São Caetano do Sul - SP

Casa térrea à venda com edícula - 2 dormitórios Bairro Olímpico - São Caetano Do Sul 157m², 2 dormitórios, banheiro social, sala, cozinha, varanda,, área de serviço, quarto de serviço. Edícula assobradada com quarto, sala e banheiro. 3 vagas de garagem. Imóvel próximo Av. Paraíso e Av, Visconde de Inhaúma. Preços e condições sujeitos a alterações.

157 m²
2 quartos
2 banh.
3 vagas

Apartamento à venda 3 dormitórios– Jardim São Caetano – São Caetano do Sul

Apartamento Cód. NAL3273
Jardim São Caetano, São Caetano do Sul - SP

More com conforto, praticidade e qualidade de vida em um dos bairros mais valorizados de São Caetano do Sul. Este apartamento mobiliado possui 87 m² bem distribuídos em 3 dormitórios, sendo 1 suíte, além de 2 banheiros e ambientes planejados para oferecer aconchego e funcionalidade no dia a dia. Localizado no 2º andar, o imóvel conta ainda com 2 vagas cobertas e demarcadas. Varanda gourmetLareiraBar integradoAmbientes aconchegantes e bem decoradosPet friendlyExcelente distribuição dos espaços Localização privilegiada no Jardim São Caetano, próximo à Universidade Municipal de São Caetano do Sul, ao ParkShopping São Caetano, ao Parque Chico Mendes e ao Hospital São Luiz São Caetano, além de escolas, mercados, padarias e diversos comércios que facilitam a rotina. Ideal para quem busca segurança, sofisticação e conveniência em uma das melhores regiões da cidade. Agende sua visita e venha conhecer seu novo lar! Preços e condições sujeitos a alterações.

87 m²
3 quartos
2 banh.
2 vagas

Terreno 10 x 40 m próximo ao Pq. Ipiranguinha - Vl. Alzira

Terreno Cód. AC6172
Vila Alzira, Santo André - SP

Terreno a venda na Vl. Alzira com 400 m² plano com 10 x 40 m próximo ao Pq. Ipiranguinha, bem localizado, próximo ao centro. Documentação em ordem. Estudam propostas. Preços e condições sujeitos a alterações.

Apartamento Térreo, 2 quartos e garagem, para locação na Santa Paula - SCS.

Apartamento Cód. IM1420
Barcelona, São Caetano do Sul - SP

Apartamento Térreo com 2 Quartos - 90 M² , Garagem - para locação na Santa Paula - SCS. O Imóvel: Se você busca praticidade e bem-estar, este apartamento é a escolha ideal. Com cômodos grandes e boa ventilação natural, o imóvel conta com: 2 Dormitórios amplos e arejados.Sala de estar aconchegante, perfeita para momentos de descanso ou para receber amigos.Cozinha funcional com boa área de circulação.Banheiro social com ótimo acabamento.Área de serviço espaçosa.1 Vaga de Garagem. ( portão automático).Obs. No valor do condomínio já está incluso o valor da Água, taxa de lixo e da limpeza. Prédio não tem elevador e não tem lazer. Localização: Situado em um dos bairros mais desejados da cidade, você estará a poucos passos de tudo o que precisa. A região oferece uma infraestrutura completa com: Supermercados, padarias, farmácias e Escolas.Proximidade com parques e áreas verdes para lazer.Fácil acesso ao transporte público e às principais vias da cidade.Ao lado da Avenida Kennedy e Avenida Goiás. Preços e condições sujeitas a alterações.

90 m²
2 quartos
1 banh.
1 vaga

Sobrado com 3 suítes-4 vagas -Próximo Chico Mendes(Chiquinho) x Permuta

Sobrado Cód. GA10.651
São José, São Caetano do Sul - SP

Sobrado com 291 m², com 3 suítes, uma delas com sacada, sala ampla com 2 ambientes com jardim de inverno, cozinha planejada, área de serviço , garagem para 4 carros.( tubulação de cobre, para aquecimento das torneiras). Localização, fica quase esquina com Rua Amazonas, próximo de Parque Chico Mendes ( Chiquinho onde se pode andar com pets) Estuda permuta por imóvel menor valor em São Caetano, ou Campestre. Preços e condições sujeito a alterações.

291 m²
3 quartos
6 banh.
4 vagas

Apartamento a venda 03 dormitórios - Santa Maria - São Caetano Do Sul

Apartamento Cód. 13271
Santa Maria, São Caetano do Sul - SP

m2Apartamento a venda em santa maria, são caetano do sul, área bem distribuída, ambiente claro e ventilado. Possui 03 dormitórios, sendo 01 suíte com closet, 01 dormitório com armário planejado e 01 dormitório adaptado para escritório. Sala ampla com sacada e boa iluminação natural. Cozinha planejada com armários em madeira maciça e fogão de embutido. Área de serviço independente com armário em madeira maciça. Banheiros espaçosos. Apartamento de frente, com entrada social pela sala e entrada de serviço pela cozinha. Dormitórios com piso vinílico, proporcionando mais conforto, e demais ambientes em piso frio. O imóvel conta ainda com gás encanado, elevador e 02 vagas de garagem indianas localizadas no primeiro piso. ° Localização próxima a escolas, parques, super mercados e restaurantes. ° Fácil acesso a avenida presidente kennedy O IPTU ainda consta em nome do antigo proprietário. A transferência de titularidade já foi solicitada, porém, devido a uma pendência administrativa junto à Prefeitura, a alteração ainda não foi concluída. A previsão é que o IPTU do exercício de 2027 já seja emitido em nome do proprietário. Aceita apartamento de menor valor até 400.000,00 em São Caetano Do Sul Preços e condições sujeitos a alterações

100 m²
3 quartos
2 banh.
2 vagas

Apartamento à venda com 50m², 2 quartos e 1 vaga

Apartamento Cód. NS3270
Taboão, São Bernardo do Campo - SP

Apartamento à venda com 50m², 2 quartos e 1 vaga Apartamento mobiliado uma combinação perfeita de conforto e conveniência. Com dois quartos bem distribuídos, é ideal para famílias ou casais que buscam um espaço acolhedor. A varanda proporciona um ambiente agradável para relaxar e apreciar a vista. Além disso, o condomínio conta com uma piscina, perfeita para momentos de lazer e diversão. Há uma vaga de estacionamento disponível, garantindo segurança e praticidades para os moradores. A localização é outro ponto forte, com proximidades de locais de interesse como o Zoo Safari, o Zoológico de São Paulo e o Parque do Estado, todos ótimas opções para passeios ao ar livre e contato com a natureza. Este imóvel é uma excelente escolha para quem busca um lar completo e bem localizado. Preços e condições sujeito a alterações.

47 m²
2 quartos
1 banh.
1 vaga

Apartamento 2 quartos - 2 vagas - 114,60 m² - B. Jardim

Apartamento sem condomínio Cód. AC6171
Jardim, Santo André - SP

Apartamento com área útil: 114,60 m², 2 dormitórios, sendo 1 suíte com 2 closets, onde um desses closets pode ser revertido facilmente para um 3º dormitório. Possui uma planta inteligente, ambientes amplos e excelente padrão de acabamento. Sala ampla com 3 ambientes com varanda envidraçada perfeita para receber amigos e família. Banheiro social (2 banheiros no total). Copa e cozinha com armários planejados. Lavanderia com despensa, garantindo organização e funcionalidade e 2 vagas de garagem. O condomínio não possui área de lazer. Condomínio com apenas 4 unidades bem localizado no coração do B. Jardim, uma das regiões mais desejadas de Santo André. Fica apenas a dois quarteirões da Rua das Figueiras, principal polo gastronômico da cidade, próximo ao Pão de Açúcar, cafés, restaurantes renomados, escolas e serviços de alto padrão. Valor de Venda sem porteira fechada (só planejados) = R$ 839.000,00 Valor de Venda com porteira fechada = R$ 939.000,00 IPTU Anual R$ 1.354,00 Preços e condições sujeitos a alterações.

114,60 m²
2 quartos
2 banh.
1 vaga

Pateo Catalunya 128m² - Andar Alto - Sol da Manhã

Apartamento Cód. JE13267
Boa Vista, São Caetano do Sul - SP

Apartamento Condominio Pateo Catalunya Maior condominio de Sao Caetano do sul com 45.000 mts2 e lazer completíssimo. 128 mts2 Area util 3 dormitórios e 2 suítes, o que é um diferencial particular dessa unidade 4 banheiros A melhor vista do condominio, totalmente livre frente piscina andar alto. Face norte, apartamento ensolarado o dia todo. Sol da manha na sacada e suite master, sol da tarde nos outros dormitorios e lavanderia. Totalmente mobiliado com otimo acabamento Condomínio clube, repleto de atividades recreativas e espaços de contemplação. Condições sujeitas a alterações.

128 m²
3 quartos
4 banh.
2 vagas

Apartamento no Baeta Neves - SBC

Apartamento Cód. NS3265
Baeta Neves, São Bernardo do Campo - SP

Apartamento no Baeta Neves - SBC com 2 dormitórios com muitos armários de marcenaria, sendo 1 suíte + 1 banheiro social, varanda fechada com vidro, lavanderia ampla com muito armário, sala com 2 ambientes, cozinha com conceito aberto, 2 vagas de garagem demarcadas 1º subsolo. DESCRIÇÃO DO CONDOMÍNIO 2 Elevadores, Piscina aquecida, Sauna, Salão de jogos, Academia, Brinquedoteca, Churrasqueira, Hall social, Quadra esportiva e Jardins. VALOR R$680.000,00 Preços e condições sujeito a alterações.

70 m²
2 quartos
2 banh.
2 vagas

Apartamento Santa Paula 78 m²- 2 vagas - Lazer

Apartamento Cód. GA10.649
Cerâmica, São Caetano do Sul - SP

Apartamento recém-reformado em localização privilegiada. Reformado, moderno e pronto para morar. São 2 dormitórios, sendo 01 suíte, banheiro social, sala ampla com sacada gourmet, área de serviço com armários , 2 vagas de garagem. Condomínio: Academia, Condomínio fechado, Elevador, Permitido animais, Piscina, Portaria, Salão de festas, Segurança 24h. Preços e condições sujeitos a alterações.

78 m²
2 quartos
2 banh.
2 vagas

Casa Bairro Nova Gerty- com vaga apenas para moto

Casa Cód. GA10.648
Nova Gerty, São Caetano do Sul - SP

casa em Sâo Caetano do Sul no Bairro Nova Gerty com 2 quartos, sala, cozinha, banheiro, lavanderia com quintal, garagem para motocicleta. Próximo da Rua Visconde de Inhaúma, Supermercado Joanin. Preços e condições sujeitos a alterações.

63 m²
2 quartos
1 banh.

Apartamento 2 quartos, 1 suíte - 2 vagas paralelas - B. Campestre

Apartamento Cód. AC6169
Campestre, Santo André - SP

Apartamento 78 m² com 2 dormitórios com armários planejados sendo 1 suíte, planta bem distribuída com ambientes amplos. A sala de estar e jantar possui varanda com ótima ventilação e luminosidade. Cozinha com móveis planejados e eletrodomésticos embutidos. Possui 2 vagas paralelas evitando manobras. Oportunidade para investidor: apartamento já alugado gerando renda imediata. Localizado em uma das regiões mais valorizadas de Santo André, próximo a comércio local, faculdades, estação de trem Utinga, divisa com São Caetano do Sul - Av. Goiás e fácil acesso às principais vias da cidade. O condomínio oferece estrutura de lazer completa, Piscina, Salão de festas, Área gourmet, Academia, Brinquedoteca, Mercadinho. IPTU Anual R$ 663,00 Preços e condições sujeitos a alterações.

78 m²
2 quartos
2 banh.
2 vagas

Sobrado novo 3 quartos sendo 3 suítes - 4 vagas - B. Campestre

Sobrado Cód. AC6168
Campestre, Santo André - SP

Sobrado novo espaçoso e bem distribuído com área construída de 110 m² em terreno de 6.65m x 20 m no Bairro Campestre, um dos bairros mais valorizados de Santo André, com fácil acesso a comércios, serviços, escolas e principais vias para o ABCD e SP.  Possui 3 quartos sendo 3 suítes, 4 vagas de garagem e um quintal nos fundos ideal para lazer, área gourmet ou jardim.    No 1º andar tem a cozinha, sala de estar, sala de jantar e lavabo. No 2º andar temos as 3 suítes. Preços e condições sujeitos a alterações.

110 m²
3 quartos
4 banh.
4 vagas

Cobertura de 1 quarto - 2 vagas

Cobertura Cód. Ge10.647
Santa Maria, São Caetano do Sul - SP

Cobertura com 1 dormitório , banheiro, cozinha, área de serviço, 2 vagas de garagem individuais . Possui 50 m² cada piso, sendo que a parte superior esta sem construção, ( mas com parte hidráulica para wc, da pra fazer a escada interna e construir + um dormitório e quintal . Localização: À apenas 200 metros do super mercado JOANIM da V. Barcelona. Oportunidade para investimento. Preços e condições sujeitos a alterações

100 m²
1 quartos
1 banh.
2 vagas

Apartamento Santa Paula - e quartos- 140 m²

Apartamento Cód. GA10.646
Santa Paula, São Caetano do Sul - SP

Apartamento com 3 quartos , sendo 01 suíte, 01 banheiro social, cozinha planejada, sala ampla, 01 vaga de garagem. Prédio: Torre única, são 15 andares, o prédio abriga 30 unidades e esta oferta específica está localizada acima do 10º andar, garantindo uma vista aberta e por do sol espetacular na direção Norte. Localização: 500 metros da avenida Goiás, próximo de transportes, academias, escolas, mercados. Preços e condições sujeitos a alterações

140 m²
3 quartos
3 banh.
1 vaga

Sobrado de 3 quartos no Bairro Cerâmica - rua plana

Casa Cód. GE10.645
Cerâmica, São Caetano do Sul - SP

Sobrado com 3 dormitórios localizado no Bairro Santo Antônio, em São Caetano Do Sul. Com 3 dormitórios, 2 banheiros, sala ampla e iluminada, jardim de inverno, cozinha espaçosa e planejada, sala, banheiro social, área de serviço e 1 vaga de garagem. Bairro Santo Antônio, localizado próximo do Park Shopping São Caetano. Escola Municipal Bartolomeu Bueno da Silva e o Colégio particular Eduardo Gomes. Preços e condições sujeitos a alterações

160 m²
3 quartos
2 banh.
1 vaga

Locação sobrado Barcelona

Sobrado Cód. GAL10.644
Santa Maria, São Caetano do Sul - SP

Sobrado com ​3 dormitórios todos com armários ( não planejados)​Sala ampla,​Cozinha muito espaçosa com armários planejados, 2 banheiros;​Pequeno quintal nos fundos;​2 vagas de garagem. Preços e condições sujeitos a alterações. Localização: Alameda São Caetano, próximo do chafariz da av Presidente Kennedy, acesso fácil a todo comércio da Barcelona e também da av Kennedy. Garantia- Seguro fiança, ou título de Capitalização ( 6 aluguéis)

165 m²
3 quartos
2 banh.
2 vagas

Apartamento Radialista térreo - São Caetano

Apartamento Cód. GA10.643
São José, São Caetano do Sul - SP

Apartamento Radialista - 56m² - Oportunidade - Térreo - 2 dormitórios, sala, cozinha com armários, wc social, área de serviço, 1 vaga de garagem. Condomínio com centro comunitário de lazer ,portaria 24 horas Preços e condições sujeito a alterações.

56 m²
2 quartos
1 banh.
1 vaga

Studio novo mobiliado 1 dormitório - 1 vaga

Apartamento Cód. AC6167
Cerâmica, São Caetano do Sul - SP

Studio 33 m² mobiliado com 1 dormitório com armário embutido, 1 banheiro com box, cozinha americana com armários, cooktop, geladeira, mesa com 2 cadeiras, lavanderia coberta e quintalzinho. Possui 1 vaga de garagem. Água inclusa no condomínio. Bem localizado a 3 quadras do Parque Chico Mendes e Shopping São Caetano. Garantia locatícia seguro fiança ou titulo de capitalização. Precisos e condições sujeitos a alterações.

35 m²
1 quartos
1 banh.
1 vaga

Casa com 2 quartos Ótima localização no bairro Olímpico

Casa Cód. SF13251
Cerâmica, São Caetano do Sul - SP

Casa à Venda no Bairro Olímpico em terreno 10 x 18 metros - São Caetano do Sul Casa com ótima localização! Com terreno plano de 10x18 metros (180 m²), esta residência oferece conforto, praticidade e uma excelente localização. Composta por 2 quartos, cozinha, lavanderia, banheiro, quintal e na lateral um salão com banheiro. Preços e condições sujeito a alterações.

180 m²
2 quartos
1 banh.
2 vagas

Sobrado Bairro São José - Próximo ao Parque Chiquinho

Sobrado Cód. NS3250
São José, São Caetano do Sul - SP

Sobrado Bairro São José - 3 quartos, sala, cozinha funcional com mais um espaço para copa, banheiro social, lavanderia e 1 vaga de garagem. Próximo a escolas, parque Chico Mendes e fácil acesso as principais vias da cidade, Preços e condições sujeito a alterações.

127 m²
3 quartos
2 banh.
1 vaga

Terreno 465m² Bairro Osvaldo Cruz

Terreno Cód. JE3248
Osvaldo Cruz, São Caetano do Sul - SP

Terreno no Bairro Osvaldo Cruz, 10,30 x 45,20 metros - 465m² Excelente para investidor, podendo ser construído 2 sobrados de alto padrão, acompanhando as construções vizinhas. Ótimo terreno. Próximo a comércio e escolas, muito bem localizado. Condições sujeitas a alteração.

465,53 m²

Apartamento 120 m² - 3 quartos - 1 suíte - 2 vagas - B. Barcelona

Apartamento Cód. AC6166
Barcelona, São Caetano do Sul - SP

Excelente apartamento com 120 m², totalmente reformado, com ótimo padrão de acabamento e distribuição inteligente dos ambientes. Apartamento amplo, moderno e pronto para morar. Possui 2 vagas de garagem paralelas. São 3 dormitórios, sendo 1 suíte com closet e sacada privativa, proporcionando mais conforto e privacidade. A sala é ampla para dois ambientes, com acesso à sacada e uma agradável vista aberta, garantindo excelente iluminação natural e banheiro social e aquecedor a gás. A cozinha é ampla e possui armários, além de área de serviço bem ventilada. Dispõe também de dependência de empregada com banheiro de serviço, agregando mais funcionalidade ao dia a dia. O condomínio oferece infraestrutura completa, com portaria 24 horas, elevador, salão de festas e academia, proporcionando segurança, conforto e praticidade aos moradores. Ideal para quem busca conforto, praticidade e um imóvel moderno, pronto para morar. Excelente localização, com fácil acesso às principais avenidas da região, como a Avenida Goiás, Avenida Presidente Kennedy e Avenida Dom Pedro II, facilitando a mobilidade para toda a cidade e região do ABC. O imóvel está ao lado da Universidade Municipal de São Caetano do Sul e cercado por uma ampla infraestrutura de comércios e serviços, como Sonda Supermercados, Mini Extra, Drogaria São Paulo, Drogasil, Swift, além do Hotel Mercure e academias Panobianco e Bluefit. Próximo ao Parque Santa Maria, Parque Linear Kennedy, a Cidade das Crianças e o tradicional chafariz da Avenida Presidente Kennedy, ideais para momentos de lazer, atividades ao ar livre e convivência. Além de ótimas escolas EMEF 28 de Julho, a EMEI Fortunato Ricci e a Escola Idalina Macedo Costa Sodré, O bairro Barcelona é um dos mais tradicionais e valorizados de São Caetano do Sul, reconhecido por sua excelente infraestrutura, segurança e qualidade de vida e uma localização estratégica, com grande variedade de comércios, serviços e facilidades no dia a dia, mantendo ao mesmo tempo um perfil residencial tranquilo. Preços e condições sujeitos a alterações.

120 m²
3 quartos
4 banh.
2 vagas

Terreno Bairro Cerâmica- Próximo Park Shopping - Comercial/Residencial

Terreno Cód. GA10.642
Cerâmica, São Caetano do Sul - SP

Terreno plano com 261m² matrícula individual e ótima localização em São Caetano do Sul no Bairro Cerâmica. Com excelente potencial construtivo. Próximo ao Park Shopping SCS (3min) e Parque Espaço Verde Chico Mendes (3min). Ideal para construção residencial, sobrado ou pequeno empreendimento. Região tranquila, com fácil acesso a comércios, escolas e transporte. Documentação regularizada - Preços e Condições sujeitos a alterações

Apartamento Mobiliado edifício Integrary Peppe 3 quartos 2 vagas

Apartamento Cód. GA10.641
Fundação, São Caetano do Sul - SP

Condomínio: Integrary Peppe - Bairro Fundação-Torre única- lazer completo ( quadra poli esportiva, pista de caminhada, churrasqueiras e forno de pizza, salão de festas, espaço mulher, espaço pet, cinema, sala de jogos, brinquedoteca interna e externa, academia, piscinas adulto e infantil (ambas aquecidas). Localização: Saída fácil para Av dos Estados e a poucos metros da faculdade de medicina, Rodoviária, Metrô, estação de trem e centro da cidade (faz tudo a pé). Próximo de farmácias, mercados, bancos, padarias, etc O Apartamento :São 3 quartos sendo 1 suite, wc social, lavabo, sala para 2 ambientes, cozinha, sacada, área de serviço, 2 vagas de garagem cobertas e depósito. Sol da manhã, andar intermediário. Apartamento está finamente decorado com piso laminado, espelhos, cortinas, box, metais, chuveiros, sacada com churrasqueira a carvão e fechamento blindex. Armários embutidos de alta qualidade em todos os cômodos e está totalmente mobiliado (mesa, cadeiras, sofá, geladeira, fogão, coifa, máquina de lavar, ar condicionado split, 2 camas casal e 1 solteiro, TV led smart, fechadura eletrônica, etc. Apto pronto, bem conservado e completo, pronto para morar. Preços e condições sujeitas a alterações Garantia: somente seguro fiança

93 m²
3 quartos
2 banh.
2 vagas

Casas térreas em terreno de 10x28 metros Bairro Osvaldo Cruz

Casa Cód. JE13243
Osvaldo Cruz, São Caetano do Sul - SP

Casas térreas em terreno de 10x28 metros Bairro Osvaldo Cruz, ótimo investimento, com duas casas. Casa 1: Toda reformada 2 dormitórios sendo uma suíte Sala Cozinha Área de serviço Churrasqueira Casa 2: 2 dormitórios Sala Cozinha Área de serviço Excelente Localização para comércio ou residência. Preços e condições sujeito a alterações

280 m²
4 quartos
3 banh.
1 vaga

3 casas mesmo terreno de 293 m² - Bairro Nova gerty

Casa Cód. GA10.640
Nova Gerty, São Caetano do Sul - SP

Bairro Nova Gerty em São Caetano do Sul SP Terreno com 293m² com 3 Casas Dimensões: 7,80m de frente; 42m de comprimento; 5,50m de fundos Ideal para Renda ou Família Grande O imóvel possui 3 residências independentes com cômodos amplos e em ótimo estado de conservação Casa 1: Quarto, sala, cozinha, banheiro e lavanderia. Casa 2: Quarto, cozinha, banheiro e lavanderia. Casa 3: Sala, quarto, cozinha, banheiro e lavanderia. Localização: a poucos metros de tudo o que o bairro Nova Gerty oferece de melhor, com toda a conveniência de comércio e serviços ao seu redor, bairro tranquilo, seguro e próximo a toda infraestrutura comercial da Rua Boa Vista e Visconde de Inhaúma, permite fácil deslocamento para outras áreas do ABC e para São Paulo Preços e condições sujeitos a alterações

131 m²
3 quartos
3 banh.

Apartamento K Home - 3 quartos - lazer x Permuta

Apartamento Cód. GA10.639
Boa Vista, São Caetano do Sul - SP

Apartamento à venda no K-Home – Av. Presidente Kennedy, São Caetano do Sul Excelente oportunidade no K-Home Residence, um dos condomínios mais desejados da Avenida Presidente Kennedy, com infraestrutura completa de lazer e segurança para toda a família. O apartamento possui 3 dormitórios, sendo 2 suítes, com um dos quartos transformado em amplo closet. A sala é integrada à varanda gourmet, voltada para o sol da manhã, garantindo ambientes bem iluminados e ventilados. A cozinha é planejada, com ótimo aproveitamento de espaço e acabamentos de qualidade. Conta ainda com 2 vagas de garagem cobertas. O condomínio oferece lazer completo, com piscina, academia, salão de festas, espaço gourmet, brinquedoteca e muito mais — ideal para quem busca conforto, praticidade e localização privilegiada. Venha conhecer e se encantar! Valores e condições sujeitos a alteração sem aviso prévio

80 m²
3 quartos
3 banh.
2 vagas

Apartamento 3 quartos - 1 suíte - 1 vaga - B. jardim

Apartamento Cód. AC6165
Jardim, Santo André - SP

Apartamento em andar alto e vista livre com 73 m², 3 quartos sendo 1 suíte, 1 vaga. Bem iluminado e ventilado. Cozinha americana com planejados, sala 2 ambientes com sacada envidraçada, 2 banheiros com ventilação natural e acabamento em gesso. Condomínio com lazer completo: piscinas, academia, brinquedoteca, salões de festa, quadra e churrasqueiras. Localização privilegiada na Av. Industrial, perto do Shopping Grand Plaza, Parque Celso Daniel, estação Prefeito Saladino e principais vias de acesso ao ABCD e SP. IPTU anual R$ 392,00 Preços e condições sujeitos a alterações.

73 m²
3 quartos
3 banh.
1 vaga

Apartamento 91 m² com 3 Quartos - 1 Suíte Móveis Planejados - Vl. Gilda

Apartamento Cód. AC6164
Vila Gilda, Santo André - SP

Apartamento na Vl. Gilda em andar alto com 3 quartos sendo 1 suíte, armários planejados, sala para 2 ambientes, varanda gourmet, cozinha integrada e planejada, banheiro social, área de serviço, Aquecedor a gás e 2 vagas de garagem cobertas. Este apartamento oferece ambientes bem distribuídos e acolhedores com lazer completo, portaria 24 horas, bem localizado, próximo ao Parque Central, Shopping ABC, Hospital São Luiz e com linha de trólebus em frente. Fácil acesso as principais vias para o ABCD, SP e litoral. Inserido em um condomínio moderno e completo, oferece excelente infraestrutura de lazer e segurança, perfeita para viver com tranquilidade e bem-estar. Preços e condições sujeitos a alterações.

91 m²
3 quartos
2 banh.
1 vaga

Sobrado 232 m² com 4 quartos - 4 vagas - Vl. Guiomar

Sobrado Cód. AC6163
Vila Guiomar, Santo André - SP

Excelente sobrado com 232 metros de construção com 4 dormitórios no andar superior, sendo uma suíte com varanda e closet. No térreo tem a sala dois ambientes bem espaçosa e aconchegante com uma ótima iluminação natural, um jardim de inverno e lavabo. Possui uma ampla cozinha integrada com sala de jantar, lavanderia área gourmet com churrasqueira, banheiro com ducha, quintal com acesso para garagem no subsolo para 4 carros e 2 portões com clausura. Imóvel excelente para quem busca espaço, conforto e praticidade para toda a família. Bem localizado, próximo a rua Catequese, rua das Figueiras com ótimos restaurantes, centro da cidade, Escolas Liceu Jardim, Educandário, mercados, comércio local e principais vias de acesso ao ABCD e SP. Preços e condições sujeitos a alterações.

232 m²
4 quartos
3 banh.
4 vagas

Casa Térrea em terreno 7 x 38 metros no Bairro Santo Antônio

Casa Cód. JE13237
Santo Antônio, São Caetano do Sul - SP

Casa térrea no Bairro Santo Antônio, São Caetano do Sul Terreno com 261 m², medindo 7 metros de frente e fundos e 38 metros nas laterais, com área construída total de 139,12 m², atualmente composta por edificações antigas. Sendo uma casa na parte frontal com 2 dormitórios, salas de estar e jantar, cozinha e banheiro, além de edícula nos fundos com 1 dormitório, cozinha e banheiro, lavanderia e amplo espaço externo com capacidade para até 5 veículos. O imóvel é ideal para investidores ou construtores, com grande potencial para demolição e aproveitamento integral do terreno. O terreno possui topografia favorável e está inserido em área residencial consolidada, permitindo diversas possibilidades de construção, conforme zoneamento local. Localizado no Bairro Santo Antônio, uma das regiões mais valorizadas de São Caetano do Sul, com fácil acesso a comércios, serviços, escolas, transporte público e às principais vias da cidade, garantindo excelente liquidez e valorização imobiliária. Condições sujeitas a alterações sem aviso prévio.

139,12 m²
2 quartos
1 banh.

Apartamento em prédio com lazer - 2 dormitórios Jardim Bela Vista

Apartamento Cód. JE13236
Jardim Bela Vista, Santo André - SP

Apartamento 2 dormitórios 1 vaga  1 banheiro (planejado) 1 sacada  Cozinha ( planejada com ilha )  Piscina  Academia  Salão de festa  Churrasqueira Jardim Bela Vista, Santo André Condições Sujeitas a alterações sem aviso prévio.

58 m²
2 quartos
1 banh.
1 vaga

*SALÃO COMERCIAL, SOBRELOJA (1º andar), - 130 M2 – COM KITNET/ESCRITÓRIO*

Salão Comercial Cód. GEL10.638
Nova Gerty, São Caetano do Sul - SP

*SALÃO COMERCIAL, SOBRELOJA (1º andar), - 130 M2 – COM KITNET/ESCRITÓRIO*   ALUGA-SE Excelente Salão Comercial no ponto mais alto e comercial do bairro Nova Gerti em São Caetano do Sul - SP, Sobreloja – 1º andar, fundos, com Escritório/Kitnet, com cozinha tipo americana (30 m2), com pia e armário + salão comercial 100 m2, 01 Banheiro com armário e chuveiro Telhado com Isolamento térmico, acústico e impermeabilizante com espuma rígida de poliuretano (temos certificado). Piso em porcelanato, localizado na Rua Manoel Augusto Ferreirinha, à 50 metros de distância da Rua Visconde de Inhaúma (centro comercial). Perfeito para escritórios, consultórios, clínicas entre outros. Total: 130 m2 Valor do aluguel: R$ 3.900,00/mês + IPTU mensal R$ 220,00 Vários estacionamentos perto / ao lado Preços e condições sujeitos a alterações   

130 m²
2 banh.

Apartamento Locação 2 dormitórios 1 suíte 2 vagas - Prédio com lazer

Apartamento Cód. GEL10.637
Santo Antônio, São Caetano do Sul - SP

Apartamento com 2 dormitórios com armários planejados sendo 1 deles suíte, sala 2 ambientes com sacada, vista livre maravilhosa, cozinha planejada, área de serviço com armários, aquecedor, 2 vagas de garagem. Prédio com piscina, salão de festas e jogos, fácil acesso para a goiás e portaria 24 horas. Garantia Locatícia Seguro Fiança. Consumo de gás e água será acrescido no condomínio conforme consumo. Preços e condições sujeito a alterações.

70 m²
2 quartos
1 banh.
2 vagas